SIGN UP CUSTOMER LOGIN
Main Photo

2 Total Photos [Click to View All]

Main Photo
Main Photo

912 Northwest Highway, Unit 200 Fox River Grove, IL 60021

$10.00 / Per SQFT
Active / MLS# 11963752 / Rental - Office / Fox River Grove
0 Beds
6900 SqFt

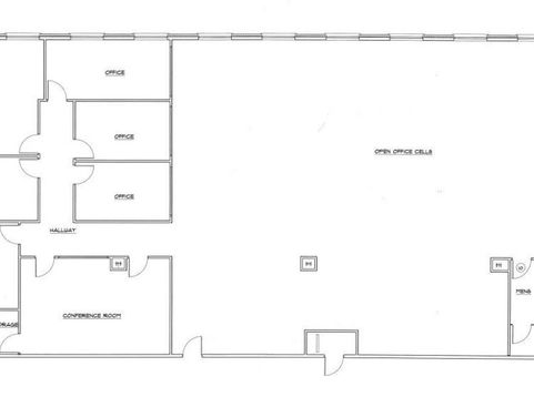
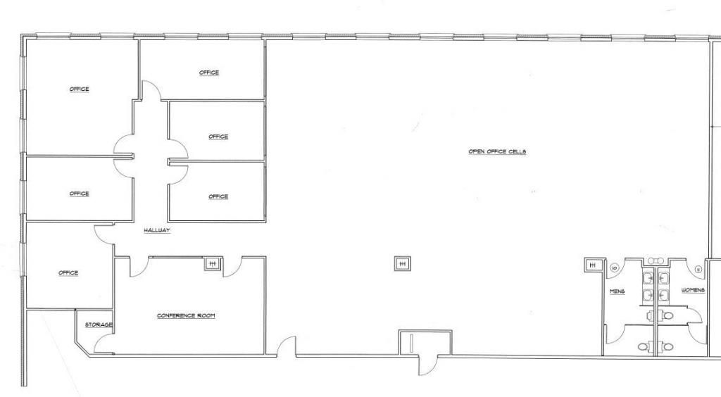
Second Floor office condo built out with six offices, conference room, cubicles in bull pen, multi-stall rest rooms in suite and heavy power in server room. Professional 2-story office building 10 minutes to Good Shepherd. Great window line provides natural light. Restaurants nearby, Owner will build out to suit. Heating and A/C incl. in CAM. Elevator in building.

Read More » Read Less »

Baird & Warner Carol Juntunen - Probate & Trust Real Estate Expert Agent Cell: 224.523.2217 Email

Property Details

Property Type: Rental - Office
Cooling: Central Air, Zoned
Roof Type: Composition, Membrane, Rubber
Stories: 2.0
Year Built: 2004

Feature Descriptions

Current Use: Office, Medical/Dental
Electric: Service - 201 to 600 Amps
Exterior: Brick, Concrete
Fire Protection: Sprinklers-Wet
Flooring: Carpet
Foundation: Concrete Perimeter
Frontage Type: US Highway
HVAC: Central Bldg Heat, Gas
Miscellaneous Indoor: Common Exercise Room/s
Number of Tenant(s): 20
Parking: Over 100 Spaces
Potential Use: Condominium, Office
Rental Term: Per SQFT
Tenant Pays: Common Area Maintenance, Electricity, Janitorial Service, Taxes
Units: 22

Location

See details and scored characteristics about this location.

Listing Office: ILrealty, Inc. Kurchina & Assoc.

Listing Office Phone: 815-344-8900



Listing data and photos distributed by MLSGRID
Member Participants (and their affiliated licensees, if applicable) shall indicate on their websites that IDX information is provided exclusively for consumers’ personal non-commercial use, that it may not be used for any purpose other than to identify prospective properties consumers may be interested in purchasing, that the data is deemed reliable but is not guaranteed by MLS GRID, and that the use of the MLS GRID Data may be subject to an end user license agreement prescribed by the Member Participant’s applicable MLS if any and as amended from time to time. MLS GRID may, at its discretion, require use of other disclaimers as necessary to protect Member Participant, and/or their MLS from liability.
Based on information submitted to the MLS GRID. All data is obtained from various sources and may not have been verified by broker or MLS GRID. Supplied Open House Information is subject to change without notice. All information should be independently reviewed and verified for accuracy. Properties may or may not be listed by the office/agent presenting the information.


Login to my Baird & Warner account

Pixel